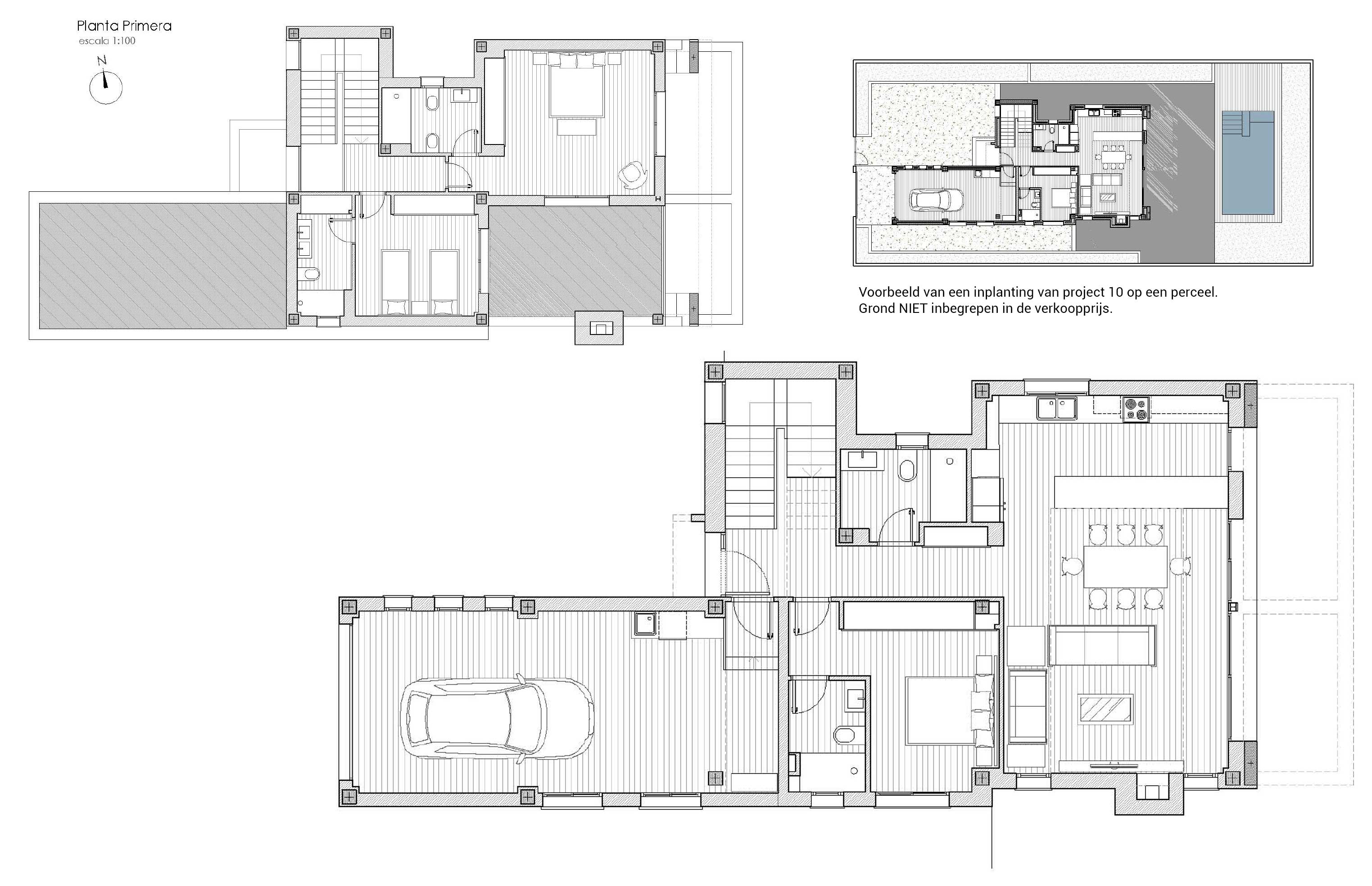
afmetingen
begane grond
bewoonbare oppervlakte 100.72m²
oppervlakte terras 103.64m²
oppervlakte garage 43.55m²
eerste verdieping
bewoonbare oppervlakte 68.13m²
oppervlakte terras 59.08m²
totaal bewoonbare oppervlakte 168.85m²
totaal oppervlakte veranda en terras 162.72m²
totaal oppervlakte garage 43.55m²
1
3
3
1
Prijs op aanvraag