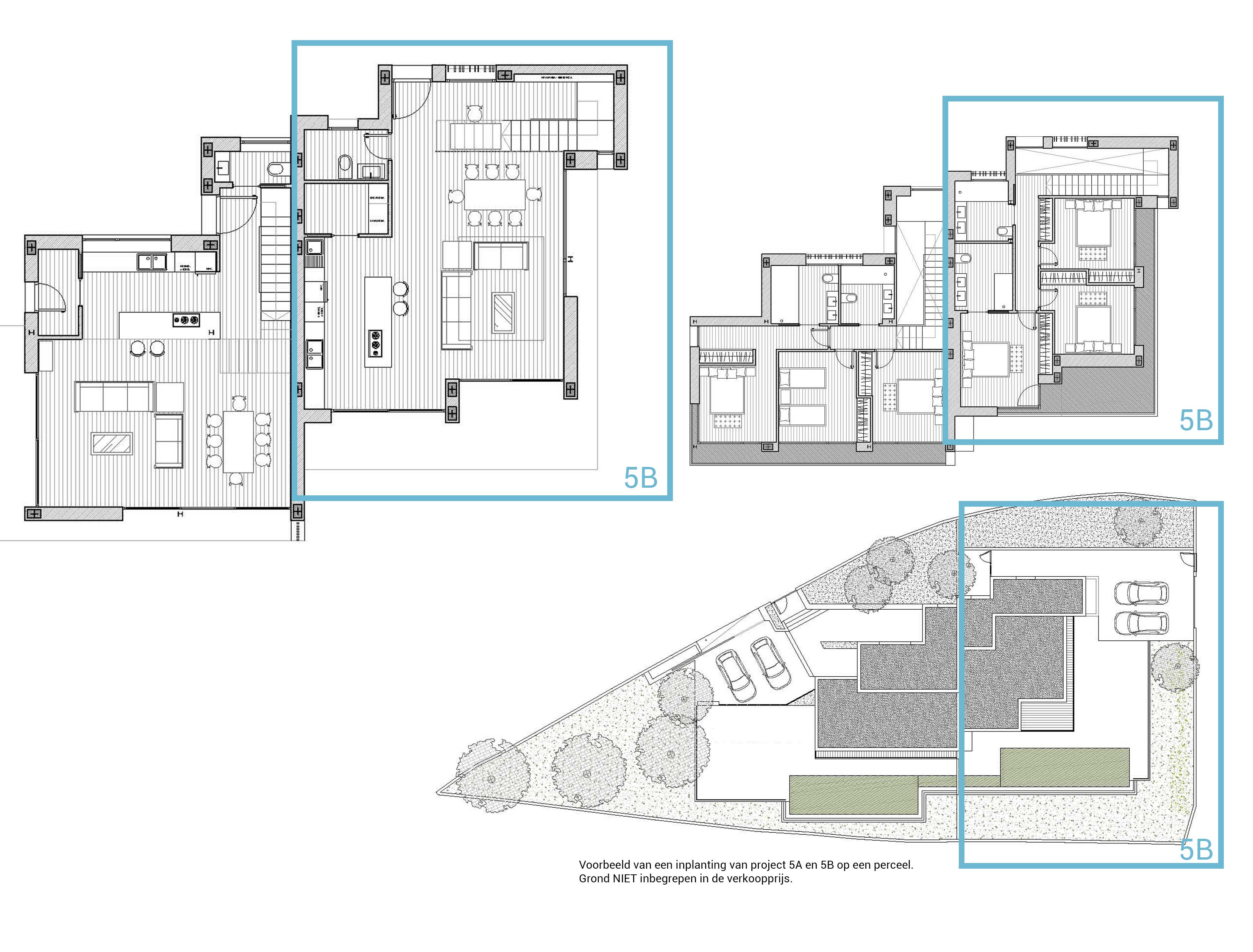
villa

project villa 05B

<<- terug naar overzicht